1 & 2/12 Lagunta Avenue, Edwardstown
Contact Agents
overview
-
1P4266
-
Industrial
-
For Sale
-
404 sqm
-
460.5 sqm
Description
CONSTRUCTION COMMENCED! – Two Brand New Corporate Office Warehouses in the Inner South
McGees Property are excited to bring to market two brand new market leading corporate office warehouses for sale in one line or individually.
Located in the sought after industrial precinct of Edwardstown, 9kms* south of the CBD, with easy access to main transport routes including South Road, Daws Road and Marion Road.
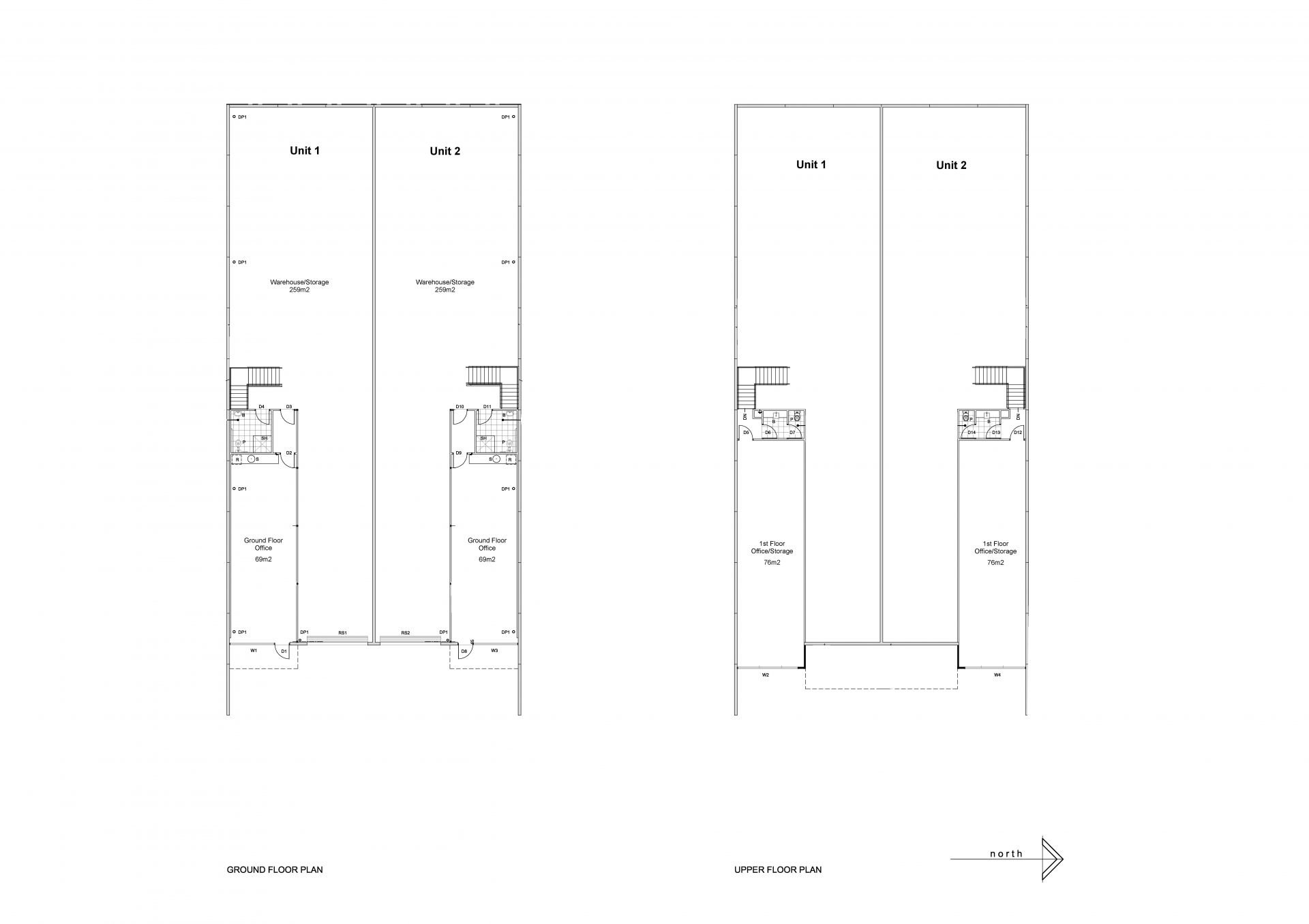
Available | Unit 1 - 404 sqm*
Available | Unit 2 - 404 sqm*
Key features include:
• High quality office/amenities over two levels
• 63A 3 Phase power
• 6m* minimum internal warehouse clearance
• On-site carparking and loading
• NBN ready with separate power and water
• Zero stamp duty payable
• Depreciation benefits available
• Zoned Strategic Employment – City of Marion
• Practical completion anticipated for December 2025
For Sale via Private Treaty
The project will be built by Partek Construction & Interiors – a proud South Australian builder delivering premium results for over 36 years.
- Winner of 2024 Master Builders Excellence in a Commercial/Industrial Building $5M to $10M
- Winner of 2024 Master Builders National Excellence in a Commercial Fit-Out up to $5M
- Winner of 2024 Master Builders Excellence in a Commercial Fit-Out up to $5M
For more information please don't hesitate to contact Ross Christodoulou or Marco Onorato of McGees Property (RLA 1722).
(* approx.)
Located in the sought after industrial precinct of Edwardstown, 9kms* south of the CBD, with easy access to main transport routes including South Road, Daws Road and Marion Road.
Available | Unit 1 - 404 sqm*
Available | Unit 2 - 404 sqm*
Key features include:
• High quality office/amenities over two levels
• 63A 3 Phase power
• 6m* minimum internal warehouse clearance
• On-site carparking and loading
• NBN ready with separate power and water
• Zero stamp duty payable
• Depreciation benefits available
• Zoned Strategic Employment – City of Marion
• Practical completion anticipated for December 2025
For Sale via Private Treaty
The project will be built by Partek Construction & Interiors – a proud South Australian builder delivering premium results for over 36 years.
- Winner of 2024 Master Builders Excellence in a Commercial/Industrial Building $5M to $10M
- Winner of 2024 Master Builders National Excellence in a Commercial Fit-Out up to $5M
- Winner of 2024 Master Builders Excellence in a Commercial Fit-Out up to $5M
For more information please don't hesitate to contact Ross Christodoulou or Marco Onorato of McGees Property (RLA 1722).
(* approx.)
